產品中心



產品介紹
安盾AD-JZX-02通過式小型車輛檢查系統是廣東安盾安檢排爆裝備集團研發生產的,專為小型載客載貨車輛(包 括小型公共汽車) 安檢需求所設計。該系統使用先進的高能量,低輻射的X射線掃描技術,可快速根據圖像判定車內是否裝 有危險品及違禁品,如武器、baozha物、毒品、走私品等。
安盾AD-JZX-02可安裝在停車場入口、公路交通檢查點、海關、邊檢口岸、重要政府機關車輛進出口、大型活動場館、重要基地的車輛入口,進行車輛的安全檢查,完全符合國內國際的輻射安全要求,無需額外輻射防護施工,可保障操作員,司機,乘客和旁觀人員的安全。該系統可根據客戶要求及安裝場地的現有條件,靈活施工,亦可和車底檢查系統集 成,實現對車輛全方位多角度的進行安全檢查。
產品特點:
通過式掃描:載客車輛通過式掃描,乘客和司機在掃描過程中可以留在車內,由司機駕駛車輛通過掃描zhuangzhi,無需額外的運力.
占地面積小:安盾AD-JZX-02的施工占地面積小,不需要額外的基地施工.
雙能成像:安盾AD-JZX-02進行制動物質識別,可以區分有機物,無機物和難穿透的金屬物品??梢詭椭僮鲉T快速識別各 種危險物品.
輻射安全:可以確保司機和乘客的輻射安全(符合ANSI 43.17的國際標準),同時系統配備的攝像頭可以識別周圍環境,避免對安檢目標以外的人員進行掃描.
選配功能:自動車配識別,車底檢測系統.
主要技術參數:
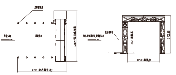
1、通道尺寸:3(寬) * 3(高)米
2、掃描速度:5~10 千米每小時
3、典型通過率:100 輛/小時
4、穿透力:典型值45mm鋼板, 應用值25mm鋼板
5、線分辨率 :直徑1.2mm銅線
6、吸收劑量:小于0.2μsv單次掃描
7、圍界劑量:公共區域小于0.5μsv符合IAEA標準
8、功耗:*2KVA
9、操作臺:24英寸單聯操作臺
X射線發生器(雙能)
10、光源:200kv
11、出束方向:側照式
操作環境
12、操作溫度/濕度:5℃~40℃ /0%~90%(濕度)
13、存儲溫度/濕度:-23℃~60℃ /10%~90%(濕度)
14、電源要求:220VAC(±10%) 50±3Hz (可選: 100VAC,110VAC,120VAC,200VAC)
軟件
15、操作員保護密碼登錄.;
16、檢查車輛信息列表,數據查詢,用戶管理,實時曲線,回放等.
17、圖像功能:彩色/黑白,局增,超增,反色,有機物剔除/無機物剔除,加亮/減暗,放大/縮??;
18、實時視頻,實時抓拍(定制);
19、有機物無機物彩色圖像顯示;
掃描樣圖:
尺寸圖: